КАРКАСНЫЙ ДОМ
     Каркасный дом
     Проекты каркасных домов
     Комплект каркасного дома
     Цена каркасного дома
     Каркасные дома фото
     Смета на строительство

  Заказать ремонт, строительство коттеджа или ландшафтные работы в режиме онлайн

Заказать ремонт, строительство коттеджа или ландшафтные работы в режиме онлайн

 

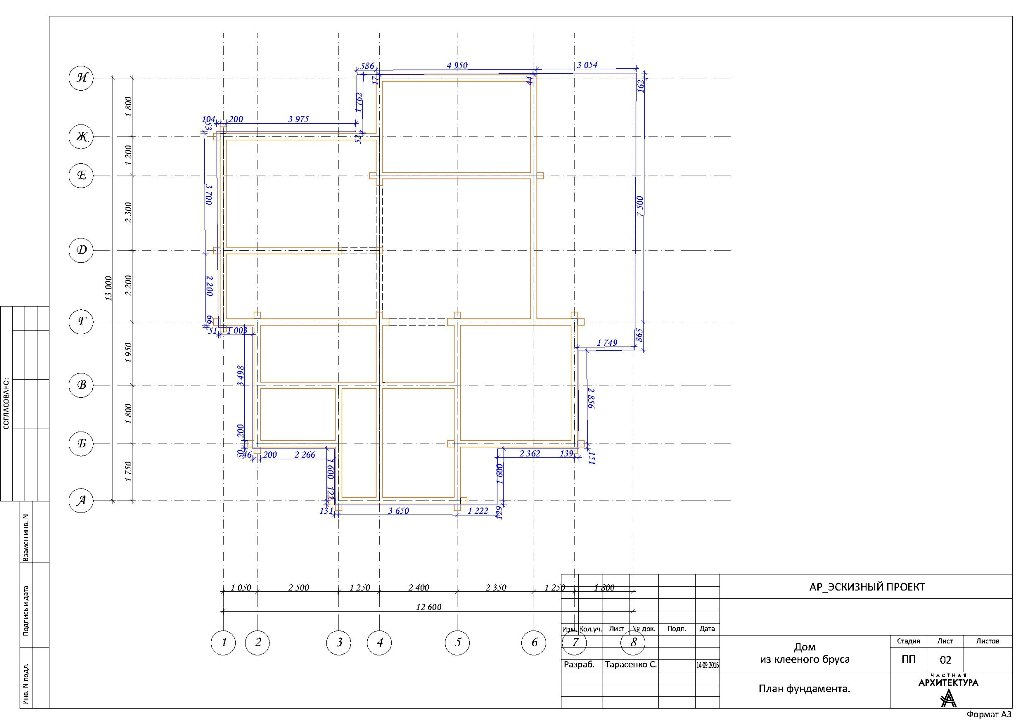
Проект дома из бруса.

Вы можете скачать проект с полными планами и чертежами.

Данный прект дома из клееного красивый по внешнему виду и удобной планировкой внутри самого дома.

Мы построим по этому проекту Вам дом из клееного 200-210 м2, стоимостью 2 800 000 - 2 900 000 рублей.

В стоимость строительства дома из бруса входит: фундамент из монолитной плиты, сам сруб дома из клееного бруса согласно проекта и кровля из металлочерепицы.

Полный проект для строительства дома 200 - 210 м2


проект дома 200 м.кв. с планами и чертежами проект дома 200 м.кв. с планами и чертежами проект дома 200 м.кв. с планами и чертежами проект дома 200 м.кв. с планами и чертежами проект дома 200 м.кв. с планами и чертежами проект дома 200 м.кв. с планами и чертежами проект дома 200 м.кв. с планами и чертежами проект дома 200 м.кв. с планами и чертежами проект дома 200 м.кв. с планами и чертежами проект дома 200 м.кв. с планами и чертежами проект дома 200 м.кв. с планами и чертежами проект дома 200 м.кв. с планами и чертежами проект дома 200 м.кв. с планами и чертежами проект дома 200 м.кв. с планами и чертежами проект дома 200 м.кв. с планами и чертежами проект дома 200 м.кв. с планами и чертежами
Общая площадь 200.9 м2
Жилая площадь 183.2 м2
Площадь застройки 120.8 м2
Полный проект дома из клееного, по которому можно построить дом 200 метров квадратных. В планировке дома все довольно органично и в то же время просто.

В доме несколько спальных комнат, кабинет, гардиробная, большая терасса, балкон на втором этаже. Дом прекрасно подойдет для большой семьи из 8 - 12 человек.

Берите скачивайте проект дома бесплатно и не забудьте у нас заказать строительство дома по этому проекту.

Да, если Вам понравился проект этого дома, то построить по этому проекту можно не только из клееного бруса дом, но и каркасный дом, что дешевле, из газобетона или изи кирпича.

Внизу страницы Вы можете ознакомиться с нашими ценами на строительство заогородных домов из различных строительных материалов.

Стоимость строительства домов за метр квадратный в рублях:

- стоимость строительства каркасного дома от 16 000 руб;

- стоимость строительства дома из профилированного бруса от 18 000 руб;

- стоимость строительства дома из оцилиндрованного бревна 23 000 руб;

- стоимость строительства дома газобетона (пенобетона) от 29 000 руб.

           8м х 7м         100 м. кв.                9м х 9м        150 м. кв.
           - каркасный дом  1 600 т.р.               - каркасный дом  2 300 т.р.
           - дом из бруса  1 800 т.р.               - дом из бруса  2 600 т.р.
           - рубленный дом  2 100 т.р.               - рубленный дом  3 000 т.р.
           - оцилиндрованное  2 300 т.р.               - оцилиндрованное  3 100 т.р.
           - клееный брус  2 600 т.р.               - клееный брус  3 900 т.р.
           - из пенобетона  2 900 т.р.               - из пенобетона  4 200 т.р.
  • Цены на строительства домов указаны в комплектации "ЭКОНОМ".
    Цена на дом в комплектации:
  • "Стандарт" + 10 % , "Зимний" + 14 % , "Люкс" + 18 % .
  • Во всех комплектациях каркасные дома строятся под ключ !!!

  Он-лайн заказ на строительство загородного дома или коттеджа  СКИДКА 5 %

Имя
email
Сообщение
   

 

Запрещается копирование и распространение материалов
сайта без ведома владельцев © 2003-14 EconomStroi.ru
О компании Виды работ Прейскурант Наши работы Инвестиции Руководства
Яндекс.Метрика