КАРКАСНЫЙ ДОМ
     Каркасный дом
     Проекты каркасных домов
     Комплект каркасного дома
     Цена каркасного дома
     Каркасные дома фото
     Смета на строительство

  Заказать ремонт, строительство коттеджа или ландшафтные работы в режиме онлайн

 

Проект дома из газобетона.

Вы можете скачать проект небольшого дома 100 м. кв. с планами.

По этому проекту можете построить частный дом из пеноблоков, пенобетона, газоблоков, кирпича (кипичный), из монолитного бетона, каркасный, из сип панелей или деревянный (бревно или брус).

Общие указания:

1. Перед началом строительно-монтажных работ проект дома должен быть привязан к конкретной местности В части: а) привязки по горизонтальным границам участка и по вертикали к рельефу, б) корректировки фундаментов в соответствии с инженерною —геологическими условиями на участке, в) подключения к местным инженерным сетям.

2. В соответствии с законом РФ ”о сертификации” все материалы и изделия, используемые в строительстве, должны быть сертифицированы на предмет гигиенической и пожарной безопасности.

3. Производство всех строительной— монтажных работ вести под постоянным наблюдением опытного производителя работ с высшим строительным образованием, с соблюдением пробил пожарной безопасности, в соответствии с нормативными документами.

Основные техники—экономические показатели:

1. Площадь застройки — 100,2 м2.

2. Жилая площадь дома — 82,4 м2.

3. Проектная площадь дома — 922,31 м2.

4. Строительный объем— 822,75 м3.

5. Площадь кровли — 115,28 м2.

Рабочая документация выполнена в соответствии с действующими нормами и правилами, и предусматривает мероприятия, обеспечивающие пожарную безопасность при эксплуатации здания.

Проект для строительства дома (газобетон/пенобетон/газоблоки или пеноблоки) 100 м2


проект дома из газобетона проект дома из газобетона проект дома из газобетона проект дома из газобетона проект дома из газобетона проект дома из газобетона проект дома из газобетона проект дома из газобетона проект дома из газобетона проект дома из газобетона проект дома из газобетона проект дома из газобетона

Данный раздел проекта индивидуального жилого дома разработан на основании технического задания, утверждённого заказчиком. Рабочие чертежи марки АР разработаны в соответствии с требованиями СНиП:

- СНиП 11—01—95 "инструкция о порядке разработки, согласования, утверждения и состава проектной документации на строительство предприятий зданий и сооружений”.

- СНиП 23—01—99 "Строительная климатология”.

- СНиП 21—01—97* "Пожарная безопасность зданий и сооружений”.

- СНиП 2—3—79*** "строительная теплотехника”.

- СНиП 12—25—80 "Деревянные конструкции. Нормы проектирования”.

1. Проект индивидуального жилого дома разработан на основании здания на проектирования.

2. Здание (частный дом из газобетона запроектировано двухэтажным, второй этаж мансардный.

3. Первый этаж: тамбур, котельная, санузел, холл, тех. помещение, гостиная, кухня, крыльцо, терраса.

Второй этаж: холл, банная, кабинет, 2 спальных, 2 гардероба, балкон.

4. За относительную отметку 0,000 принят уровень чистого пола.

5. Внутренняя отделка не входит в состав настоящего проекта и выполняется в соответствии с дизайном — проектом интерьеров, выполненным в соответствии с желанием заказчика.

6. Водосточная система — наружная организованная.

7. Устройство полов следует производить только после выполнения всех монтажных работ по проводке инженерных коммуникаций.

8. Устройство потолков следует производить только после размещения инженерных коммуникаций.

9. В соответствие с "Законом о сертификации” РФ бее изделия и материалы, используемые в строительстве должны быть сертифицированы б отношение гигиенической и пожарной безопасности и на соответствие государственным стандартам.

Конструктивные решения:

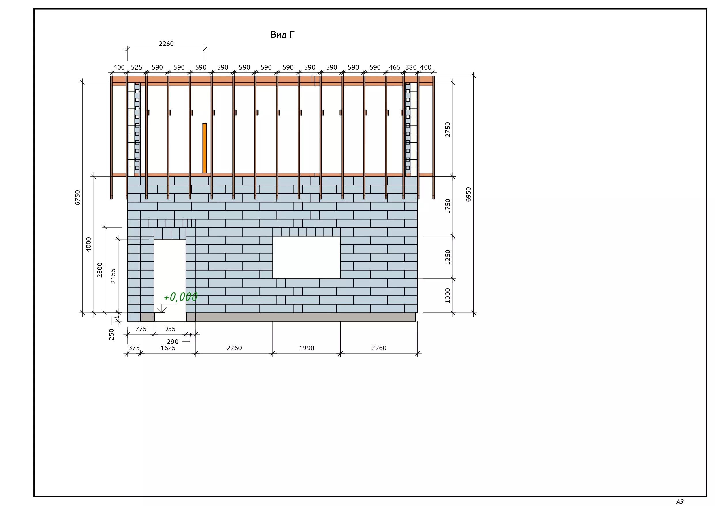
1. Фундамент — железобетонная плита 250мм с цоколем 250мм.

2. Несущий элемент — стены из газобетонных блоков 375(250) мм, колонна кирпичная.

3. Наружные несущие стены выполнены из газобетонных блоков 375мм .

4. Внутренние несущие стены из газобетонных блоков 250мм.

4. Перегородки выполнены из газобетонных блоков 150мм и каркасные.

5. Наружные стены опираются на монолитную железобетонную плиту.

5. Перекрытие между 1 и 2 этажом— монолитная плита 160мм.

6. Кровля — металл черепица по обрешеткам и деревянным стропилам. 7. По периметру здания устраивается бетонная отмостка шириной 900мм по песчаное—щебеночному основанию с уклоном 5% от здания.

8. Обработку деревянных изделий антисептиками и антипиренами производить в соответствие со СНиП 3.03.01—87 и НПВ 2.32—96.

9. Антикоррозийная защита производится в соответствии со СНиП 3.03.04-85.

10. Производство всех строительно—монтажных робот вести под постоянным наблюдением опытного производителя с высшим строительным образованием, с соблюдением правил техники безопасности в соответствии с требованиями нормативных документов.

Инженерное оборудование: 1. Отопление — индивидуальный отопительный котел. В помещениях отопительные радиаторы.

2. Водоснабжение — холодное от местной сети или скважины, горячее — через бойлер.

3. Канализация — в местную сеть или локальные очистные сооружения.

4. Электроснабжение — местная сеть.

Наша строительная компания "Эконом Строй" построит по этому проекту для Вас каркасный дом 100 м2, стоимостью 2 400 000 рублей с полной отделкой под ключ. Фундамент будет построен на винтовых сваях. Если построить бетонный фундамент, то стоимость увеличится на 180 000 рублей.

Дом из клееного бруса сечением 100 мм х 150 мм по данному проекту мы построим Вам за 3 400 000 рублей под ключ. Фундамент под дом из газобетона по этому проекту построим в виде бетонной ленты или монолитной плиты с ростверком.

С этой планировкой построим деревянный дом из профилированного бруса (оцилиндрованного или рубленного бревна) сечением 150 мм х 150 мм по цене строительства каркасного дома, то есть за 2 400 000 рублей. Фундамент под дом будет на винтовых сваях 108 мм диаметра.

Если Вам понравилась планировка дома в этом проекте, то возможно строительство загородного дома из кирпича, пенобетона, газо силикатных блоков, пеноблоков, пенобетона, газоблоков, из сип панелей или из монолитного бетона.


Вы искали в интернете: проекты домов из пеноблоков бесплатно; сколько нужно денег чтобы построить дом из пеноблоков 10х10; проект бюджетного дома из пеноблоков; сколько надо денег чтобы построить дом 10 на 10 из газобетона; проекты домов и коттеджей ; бесплатно чертежи и фото; проект дома из пеноблоков бесплатно с сметой; проект дома из пеноблоков одноэтажный с 3 спальнями; проект дачного дома из пеноблоков; дома с мансардой проекты фото планировка простые из пеноблоков; дом из пеноблоков плюсы и минусы; скачать проект готового дома из газоблоков или пенобетона.

 

Запрещается копирование и распространение материалов
сайта без ведома владельцев © 2003-2021 EconomStroi.ru
О компании Виды работ Прейскурант Наши работы Инвестиции Руководства
Яндекс.Метрика