КАРКАСНЫЙ ДОМ
     Каркасный дом
     Проекты каркасных домов
     Комплект каркасного дома
     Цена каркасного дома
     Каркасные дома фото
     Смета на строительство

  Заказать ремонт, строительство коттеджа или ландшафтные работы в режиме онлайн

Заказать ремонт, строительство коттеджа или ландшафтные работы в режиме онлайн

 

Проект дома из пенобетона.

Скачать проект дома 250 м2, Вы можете бесплатно.

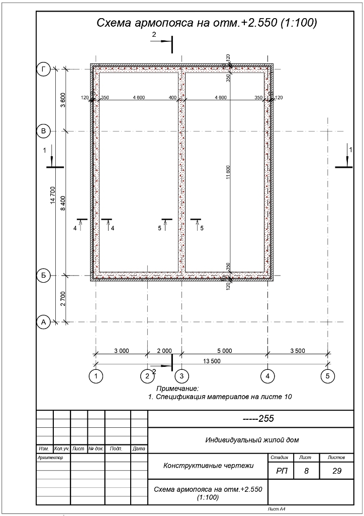
Индивидуальный жилой дом, общей площадью 255,27 м2. Габаритные размеры дома в осях 14,700х13,500м. Высота 1 этажа - 2,800м, высота 2 этажа - 2,700м. Отметка конька - 9,581м.

Технико-экономические показатели:

Общая площадь дома - 255,27 м2.
Площадь 1-го этажа - 157,80 м2.
Площадь 2-го этажа - 97,47 м2.
Жилая площадь - 124,81 м2.

Объемно-планировочные решения.

В доме предусмотрены помещения: тамбур, котельная, холл, С/У, кладовая, кухня-столовая, спальни, веранда, гостиная, кабинет, гардеробная, ванная.

В проекте указаны относительные отметки. За 0.000 принята отметка уровня чистого пола 1 этажа.

Основные конструкции и материалы:

Все конструкции разработаны из условия нагрузок снегового и ветрового районирования:

-снеговая нагрузка - IV район, расчетная нагрузка 240 кг/м2;
-ветровая нагрузка - I район, расчетная нагрузка 38 кг/м2;
-расчетная температура наружного воздуха - -30ос внутреннего - +20ос.

Конструкцию фундамента уточнить в зависимости от состава грунтов и уровня грунтовых вод. При обнаружении залегания в основании фундаментов слабых грунтов производство работ приостановить и выполнить геологоразведочные работы.

Арматурные и бетонные работы вести согласно СНиП 3.02.01-87 и СНиП 3.03.01-87. Наружние несущие стены - газобетонные блоки толщина 400мм с облицовкой кирпичом. Внутрение несущие стены - газобетонные блоки толщина 400мм. Перегородки 1 и 2 этаж - гипсокартон 100мм, кирпич 120мм.

Перекрытие 1-го этажа - сборные ж/б плиты. Перекрытие 2-го этажа - лаги перекрытия 200х50мм с утеплением 200мм.

Кровля - гибкая черепица. Стропила - из обрезной доски 200х50 мм с шагом 650мм.

Полный проект дома из газобетона 250 м2.


проект дома из газобетона 250 м проект дома из газобетона 250 м проект дома из газобетона 250 м проект дома из газобетона 250 м проект дома из газобетона 250 м проект дома из газобетона 250 м проект дома из газобетона 250 м проект дома из газобетона 250 м проект дома из газобетона 250 м проект дома из газобетона 250 м проект дома из газобетона 250 м проект дома из газобетона 250 м проект дома из газобетона 250 м проект дома из газобетона 250 м проект дома из газобетона 250 м проект дома из газобетона 250 м проект дома из газобетона 250 м проект дома из газобетона 250 м проект дома из газобетона 250 м проект дома из газобетона 250 м проект дома из газобетона 250 м проект дома из газобетона 250 м проект дома из газобетона 250 м проект дома из газобетона 250 м проект дома из газобетона 250 м проект дома из газобетона 250 м проект дома из газобетона 250 м проект дома из газобетона 250 м проект дома из газобетона 250 м проект дома из газобетона 250 м проект дома из газобетона 250 м проект дома из газобетона 250 м проект дома из газобетона 250 м проект дома из газобетона 250 м проект дома из газобетона 250 м проект дома из газобетона 250 м проект дома из газобетона 250 м проект дома из газобетона 250 м / проект дома из газобетона 250 м проект дома из газобетона 250 м проект дома из газобетона 250 м проект дома из газобетона 250 м
Общая площадь 255.27 м2
Жилая площадь 124.81 м2

Проект предназначен для строительства: каркасного дома или дома из газобетона/пенобетона/газосиликатных блоков, дома из кирпича, деревянного дома из рубленного/оцилиндрованного бревна, дома из клееного/профилированного бруса или загородного дома из монолитного бетона.

Стоимость строительства дома за один квадратный метр общей площади.

  • Дома из пенобетона (газобетона или пеноблоков) от 19 000 рублей кв.м
  •  
  • Дома из кирпича с утеплителем (50 мм) от 32 000 рублей кв.м.
  •  
  • Дома из профилированного бруса от 16 000 рублей кв.м
  •  
  • Дома из оцилиндрованного бревна от 20 000 рублей кв.м
  •  
  • Дома из клееного бруса от 28 000 рублей кв.м.
  •  
  • Строительство каркасного дома от 15 000 рублей кв.м
  •  
  • Строительство дома из СИП панелей от 17 000 рублей кв.м.


  • Технология, чертежи и схема сборки, построенные каркасные дома фото. Полная смета на строительство и отделку каркасного дома примерно 100 м2. Фото этапов строительства, сборки каркасника.
               8м х 7м         100 м. кв.                9м х 9м        150 м. кв.
               - каркасный дом  1 600 т.р.               - каркасный дом  2 300 т.р.
               - дом из бруса  1 800 т.р.               - дом из бруса  2 600 т.р.
               - рубленный дом  2 100 т.р.               - рубленный дом  3 000 т.р.
               - оцилиндрованное  2 300 т.р.               - оцилиндрованное  3 100 т.р.
               - клееный брус  2 600 т.р.               - клееный брус  3 900 т.р.
               - из пенобетона  2 900 т.р.               - из пенобетона  4 200 т.р.
    • Цены на строительства домов указаны в комплектации "ЭКОНОМ".
      Цена на дом в комплектации:
    • "Стандарт" + 10 % , "Зимний" + 14 % , "Люкс" + 18 % .
    • Во всех комплектациях каркасные дома строятся под ключ !!!

      Он-лайн заказ на строительство загородного дома или коттеджа  СКИДКА 5 %

    Имя
    email
    Сообщение
       

     

    Запрещается копирование и распространение материалов
    сайта без ведома владельцев © 2003-2018 EconomStroi.ru
    О компании Виды работ Прейскурант Наши работы Инвестиции Руководства
    Яндекс.Метрика