КАРКАСНЫЙ ДОМ
     Каркасный дом
     Проекты каркасных домов
     Комплект каркасного дома
     Цена каркасного дома
     Каркасные дома фото
     Смета на строительство





ПОСТРОЕННЫЕ ДОМА.

Дом из клееного бруса.

Дом из клееного бруса

Деревянный дом из бревна.

Деревянный дом из бревна

Дачный дом с отделкой.

Дачный дом с отделкой

Дом и баня из бревна.

Дом и баня из бревна

Каркасный дом с отделкой.

Каркасный дом с отделкой

Дом из бревна.

Дом из оцилиндрованного бревна

 

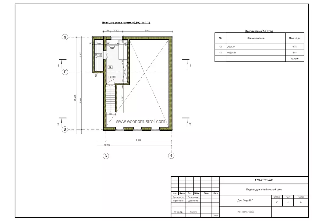
Чертежи каркасного дома.

Скачать проект каркасного дома 129 м. кв. с размерами стен, планов, фасадов.



1. Общая площадь дома 128,88 кв.м.

2. Жилая площадь 88,72 кв.м.

3. Площадь застройки 157,85 кв.м.

4. Строительный объем 742,0 кв.

ПОЯСНИТЕЛЬНАЯ ЗАПИСКА:

1. Общая часть.

Рабочий проект разработан на основании требований глав СНиП:

- СНиП 11-04-2003 (СП 111.13330.2011) "Инструкция о порядке разработки, согласования, утверждения и состава проектной документации на строительство предприятий, зданий и сооружений”;
- СП 352.1325800.2017 "Здания жилые одноквартирные с деревянным каркасом. Правила проектирования и строительства"
- СП 54.13330.2016 "Здания жилые многоквартирные”;
- СП 55.13330.2016 "Дома жилые одноквартирные”;
- СП 8.13130.2020 Системы противопожарной защиты. Наружное противопожарное водоснабжение.
Требования пожарной безопасности;
- СНиП 21-0197* "Пожарная безопасность зданий и сооружений”;
- СП 20.13330.2016 "Нагрузки и воздействия”;
-СП 22.13330.2016 "Основания зданий и сооружений”;

Производство всех монтажно-строительных работ вести под наблюдением опытного производителя работ с высшим строительным образованием, с соблюдением правил техники безопасности в соответствии с требованиями действующих нормативных документов.

2. Архитектурно-планировочные решения. Мансардный жилой дом с размерами в плане - 13,0х12,3м (в осях) рассчитан на проживание одной семьи.

Высота помещений 1-го этажа - минимум 2,5м, мансардного этажа - 1,8/2,5м.
За относительную отметку 0.000 принимается отметка чистого пола первого этажа.
- Степень огнестойкости здания V;
- Класс функциональной пожарной безопасности - Ф1/4;
- Класс конструктивной пожарной безопасности - С3.
- Нормативная глубина промерзания - 1,2м.
Инженерное оборудование здания предусматривает:
- электроснабжение - от наружных сетей;
- водоснабжение - центральное;
- канализация - септик;

- отопление - радиаторное, двухконтурный газовый котел;
- горячее водоснабжение - двухконтурный газовый котел.

3. Отделка фасадов.

Цоколь - утепленный, керамо-гранитная плитка.
Стены - имитация бруса.
Покраска фасада - слой грунтовки, два слоя краски.
Дымовые и вент. трубы - вентиляционные выходы под металочерепицу.
Окна - стеклопакеты двухкамерные (окна, дверь).
Отливы - металлические (глубина 75 мм) по размеру окна, цвет белый.
Откосы - ПВХ (пластиковые), цвет белый.
Подоконники - глубина 150- 200-250 мм, по размеру окна, цвет белый.
Москитные сетки - устанавливаются на все открывающиеся створки, по размеру окна
Наружные двери - металлическая с двумя замками, утепленная.
Террасные двери - металло-пластиковые с двойным стеклопакетом.

4. Конструктивные решения.

Фундамент - ж/б монолитная плита 250мм в доме, сваи O89мм на террасе.
Цоколь - утепленный, керамо-гранитная плитка.
Обвязка - доска 50х200, 50х150 и 50х100мм в доме, брус 100х150мм на террасе.
Перекрытие:
на отм. -0,220 - доска 50х150мм на террасе.
на отм. +2,550 - доска 50х200мм.

Стены:

Наружные - из сухой строганной доски 50х200 мм. с шагом 630 мм.
Внутренние несущие стены - из сухой строганной доски 50х150 мм. с шагом 630 мм.
Внутренние перегородки - из сухой строганной доски 50х100 мм. с шагом 630 мм.
Конструкция крыши - скатная.
Покрытие кровли - металлочерепица.
Вентканалы - в оцинкованных или пластиковых коробах 60х120мм, грибки (размещение уточнить по месту).
Отмостка - по периметру здания из армированого монолитного ж/б толщиной 100 мм по песчаному основанию с покрытием из тротуарной плитки.
Технические решения, принятые в рабочих чертежах соответствуют требованиям экологических, санитарно-гигиенических и других норм, действующих на территории Российской Федерации и обеспечивают безопасную для жизни людей эксплуатацию объекта при соблюдении предусмотреных рабочими чертижами мероприятий.


проект каркасного дома проект каркасного дома проект каркасного дома проект каркасного дома проект каркасного дома проект каркасного дома проект каркасного дома проект каркасного дома проект каркасного дома проект каркасного дома проект каркасного дома проект каркасного дома


  Построим каркасный дом по данному проекту   СО СКИДКОЙ 25 % !.

Комплектация "теплый контур" за 22 000 руб/м2, дом под ключ 28 руб/м2 (свайный фундамент, отделка внутри и снаружи, инженерные сети без септика и скважины).

 

Запрещается копирование и распространение материалов
сайта без ведома владельцев © 2003-2022 Econom-Stroi.com
О компании Виды работ Прейскурант Наши работы Инвестиции Руководства
Яндекс.Метрика