СТОИМОСТЬ ДОМА
     Каркасное строительство.
     Проекты каркасных домов
     Комплектация дома
     Стоимость каркасного дома
     Построенные дома фото
     Смета на строительство

 

Проект дома с мансардой.

Скачать чертежи деревянного дома 166 м2 с фасадами и размерами.



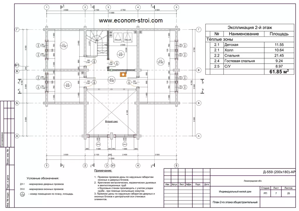
Основные технико-экономические показатели:

1.Общая площадь здания - 166,73 м2

2.Тёплая площадь - 145,73 м2

3.Площадь террас и балконов - 21 м2

4.Площадь застройки - 118,8 м2

5.Этажность - 2

6.Степень огнестойкости - V

7.Класс функциональной пожарной опастности - Ф 1.4


проект дома из бруса проект дома из бруса проект дома из бруса проект дома из бруса проект дома из бруса проект дома из бруса проект дома из бруса проект дома из бруса проект дома из бруса проект дома из бруса проект дома из бруса проект дома из бруса проект дома из бруса проект дома из бруса проект дома из бруса проект дома из бруса проект дома из бруса проект дома из бруса проект дома из бруса проект дома из бруса проект дома из бруса проект дома из бруса проект дома из бруса проект дома из бруса проект дома из бруса проект дома из бруса проект дома из бруса проект дома из бруса


ОСНОВНЫЕ КОНСТРУКЦИИ И МАТЕРИАЛЫ ДЛЯ СТРОИТЕЛЬСТВА ДЕРЕВЯННОГО ДОМА С МАНСАРДОЙ:

- Проектная документация Д-559(200х180)-АР. "Индивидуальный жилой дом" разработана на основании задания по проектированию.

1.Объемно-пространственное решение.

1.1.Комплекс дома состоит из одного двухэтажного корпуса.

2. Согласно СП 131.13330.2012. "Строительная климатология" проект разработан для строительства в районе со следующими природно-климатическими условиями:

- климатический район - II В;

- расчетная зимняя температура наружнего воздуха:

- наиболее холодных суток - минус 27 С;

- наиболее холодной пятидневки - минус 24 С;

- расчетный вес снегового покрова для IV района - 240 кгс/м2,СП 20.13330.2011;

- нормативное ветровое давление для II района - 30 кгс/м2, СП 20.13330.2011 ;

3. Степень огнестойкости V.

4. Класс функциональной пожарной опасности - Ф1.4

5. За относительную отметку 0.000 принята отметка низа брусовых стен.

6. Фундамент - монолитный железобетонный плитный.

7. Наружные и внутренние несущие стены из клееного бруса сечением 200х180(h) мм. Высота венца 170 мм, до усадки.

8. Перегородки - каркасные с заполнением утеплителем.

9. В местах примыкания к брусовым стенам каркасных перегородок предусмотреть установку скользящих креплений для беспрепятственной осадки брусовых стен.

10. Межэтажное перекрытие выполнить по деревянным балкам с утеплением.

11. Кровля скатная по деревянным несущим конструкциям. Материал кровельного покрытия- металлочерепица.

12. Лестница индивидуальная. Выполнить по габаритным размерам помещения.

13. Расстановка мебели и сантехнических приборов в показана условно для наглядности и понимания назначения каждого помещения.

14. Все вертикальные отметки и размеры указанные на чертежах АР даны на период строительства (до усадки).

15. Отопление здания предположительно предусматривается от собственного котла. Отопительные приборы-водяные радиаторы, (уточнить по проекту АИ).

16. Дом оборудуется системой молниезащиты ( по отдельному проекту) 17. Канализация-местная в септик.

18. Наружная окраска бревенчатых стен выполняется лессирующим антисептиком. Колер согласовать с Заказчиком с выполнением пробных выкрасок.

19. Внутренняя отделка выполняется в соответствии с проектом интерьера(АИ).

20. Проект соответствует действующим нормам и правилам


Полный проект одноэтажного каркасного дома с чертежами, с размерами и со схемами в пдф (PDF) формате Вы можете бесплатно скачать » » » для ознакомления или для строительства дома своими руками.

Проект разводки и монтажа электрики в загородном дом Вы можете заказать в фирме © Электрика СПб. Разработка проекта электрики стоит от 200 рублей за м2 площади дома.

Проект деревянной лестницы для своего дома (коттеджа, дачи, таунхауса, бани) Вы можете заказать в фирме © Лестницы С-Пб. Разработка проекта лестницы из дерева на этаж, стоит от 5 000 рублей, детализированный от 25 000 рублей.

  Построим каркасный дом по данному проекту   СО СКИДКОЙ 25 % !.

Комплектация "теплый контур" за 22 000 руб/м2, дом под ключ 28 руб/м2 (свайный фундамент, отделка внутри и снаружи, инженерные сети без септика и скважины).

 

Запрещается копирование и распространение материалов
сайта без ведома владельцев © 2003-2021 Econom-Stroi.com
О компании Виды работ Прейскурант Наши работы Инвестиции Руководства
Яндекс.Метрика