КАРКАСНЫЙ ДОМ
     Каркасный дом
     Проекты каркасных домов
     Комплект каркасного дома
     Цена каркасного дома
     Каркасные дома фото
     Смета на строительство

  Заказать ремонт, строительство коттеджа или ландшафтные работы в режиме онлайн

Заказать ремонт, строительство коттеджа или ландшафтные работы в режиме онлайн

 

Проект дома 225 м. кв.

Вы можете скачать проект загородного дома 225 м. кв. со всеми чертежами

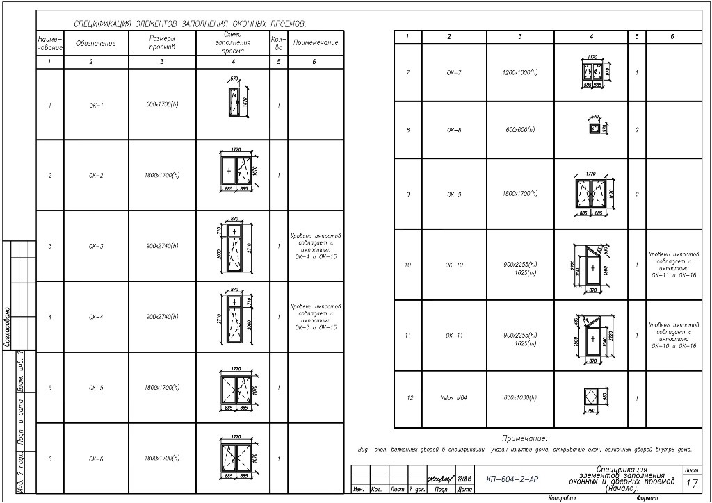
На чертежах подробно обозначены размеры фундамента, стропильной системы кровли дома, поэтажные планы дома, расстановка мебели и оборудования, чертежи фасада дома по осям, спецификация элементов заполнения оконных и дверных проемов.

По этому полному проекту загородного дома можно построить дом из любых строительных материалов: из пенобетона и газобетона, из клееного или профилированного бруса, из кирпича или из монолитного бетона, так же можно построить каркасный дом.

Если Вам понравилась планировка и внешний вид дома, то скачивайте и стройте. Хотя строительство дома лучше заказать у специалистов, то есть в строительной фирме специализирующейся на загородном строительстве. Наша фирма "Эконом Строй" одна из немногих фирм Санкт-Петербурга которая строит загородные дома под ключ.

Мы построим по этому проекту Вам загородный дом 225 м. кв. под ключ, стоимостью: каркасный 2 300 000 рублей, из газобетона 3 600 000, из кирпича 4 500 000, из клееного бруса 3 600 000 рублей с полной отделкой под ключ.

Стоимость строительства загородного дома зависит от необходимых инженерных сетей и используемых материалов для отделки дома. Так же на стимость строительства дома влияет какой септик установить, отопление каким котлом сделать, какой фундамент под дом построить, наружная и внутренняя отделка.

Полный проект для строительства загородного дома 225 м2.


проект  дома 225 м.кв. проект  дома 225 м.кв. проект  дома 225 м.кв. проект  дома 225 м.кв. проект  дома 225 м.кв. проект  дома 225 м.кв. проект  дома 225 м.кв. проект  дома 225 м.кв. проект  дома 225 м.кв. проект  дома 225 м.кв. проект  дома 225 м.кв. проект  дома 225 м.кв. проект  дома 225 м.кв. проект  дома 225 м.кв. проект  дома 225 м.кв. проект  дома 225 м.кв. проект  дома 225 м.кв. проект  дома 225 м.кв. проект  дома 225 м.кв. проект  дома 225 м.кв.
Общая площадь 224.9 м2
Жилая площадь 210.2 м2

Построим по данному проекту: каркасный дом или из газобетона/пенобетона/газосиликатных блоков, из кирпича, из рубленного/оцилиндрованного бревна, из клееного/профилированного бруса, из монолитного бетона.

Стоимость строительства дома за один квадратный метр общей площади.

  • Дома из пенобетона (газобетона или пеноблоков) от 19 000 рублей кв.м
  •  
  • Дома из кирпича с утеплителем (50 мм) от 32 000 рублей кв.м.
  •  
  • Дома из профилированного бруса от 16 000 рублей кв.м
  •  
  • Дома из оцилиндрованного бревна от 20 000 рублей кв.м
  •  
  • Дома из клееного бруса от 28 000 рублей кв.м.
  •  
  • Строительство каркасного дома от 15 000 рублей кв.м
  •  
  • Строительство дома из СИП панелей от 17 000 рублей кв.м.
  • Самый популярный проект дома, по которому можно построить дом 120 - 130 метров. В планировке дома все довольно органично и в то же время просто. В доме 5 спальных комнат, одна на первом этаже. Дом подойдет для большой семьи из 8 - 12 человек, это вместе с бабушками, детьми и внуками. Например старикам на первом этаже выделить спальную, здесь и ванная комната и кухня рядом. На втором этаже родители разместятся с двумя тремя детьми и для гостей комната останется. Да и на втором этаже в данном проекте дома предусмотрена большая ванная комната. Берите скачивайте проект бесплатно и не забудьте у нас заказать строительство дома по этому проекту.

    Технология, чертежи и схема сборки, построенные каркасные дома фото. Просчитанная смета на строительство и отделку каркасного дома примерно 100 кВ. м. Фото этапов строительства, сборки каркасника.
               8м х 7м         100 м. кв.                9м х 9м        150 м. кв.
               - каркасный дом  1 600 т.р.               - каркасный дом  2 300 т.р.
               - дом из бруса  1 800 т.р.               - дом из бруса  2 600 т.р.
               - рубленный дом  2 100 т.р.               - рубленный дом  3 000 т.р.
               - оцилиндрованное  2 300 т.р.               - оцилиндрованное  3 100 т.р.
               - клееный брус  2 600 т.р.               - клееный брус  3 900 т.р.
               - из пенобетона  2 900 т.р.               - из пенобетона  4 200 т.р.
    • Цены на строительства домов указаны в комплектации "ЭКОНОМ".
      Цена на дом в комплектации:
    • "Стандарт" + 10 % , "Зимний" + 14 % , "Люкс" + 18 % .
    • Во всех комплектациях каркасные дома строятся под ключ !!!

      Он-лайн заказ на строительство загородного дома или коттеджа  СКИДКА 5 %

    Имя
    email
    Сообщение
       

     

    Запрещается копирование и распространение материалов
    сайта без ведома владельцев © 2003-2018 EconomStroi.ru
    О компании Виды работ Прейскурант Наши работы Инвестиции Руководства
    Яндекс.Метрика