КАРКАСНЫЙ ДОМ
     Каркасный дом
     Проекты каркасных домов
     Комплект каркасного дома
     Цена каркасного дома
     Каркасные дома фото
     Смета на строительство



Отделка искусственным камнем.

отделка стен дома внутри искусственным камнем


Внутренняя отделка дома.

отделка дома из газобетона


Отделка дома из газобетона.

отделка дома из газобетона


Отделка ванной комнаты дачи.

фото отделки дома из газобетона


Отопление, водоснабжение.

фото отделки дома из газобетона


Отделка дома из бревн.

фото отделки дома из бревна


Отделка дома из пенобетона.

отделка дома внутри


Отделка дома из бревна.

отделка деревянного дома зи рубленного бревна


ПОСТРОЕННЫЕ ДОМА.

Дом из газобетона.

Дом из газобетона с облицовкой кирпичем

Дом из клееного бруса.

Дом из клееного бруса

Каркасный дом под ключ.

Каркасный дом под ключ

Деревянный дом из бревна.

Деревянный дом из бревна

Дом из пенобетона.

Дом из пенобетона

Дачный дом с отделкой.

Дачный дом с отделкой

Дом и баня из бревна.

Дом и баня из бревна

Каркасный дом с отделкой.

Каркасный дом с отделкой

Дом из бревна.

Дом из оцилиндрованного бревна

Каркасный дом 260 м2.

Каркасный дом

Реконструкция дачи.

Реконструкция дачного дома

Строительство дачи.

Строительство дачи

 

Дом из клееного бруса проект.

Вы можете бесплатно скачать чертежи с размерами, с планировкой.

В доме на первом этаже расположены: гостиная комната 40 м.кв., кухня 13.7 м.кв., кабинет 11.8 м.кв., холл 20.5 м.кв., сан. узел 1 7.5 м.кв., сауна 4.4 м.кв., постирочная 7.7 м.кв., сан. узел 2 4.4 м.кв., гардероб 7.7 м.кв., тамбур 3.1 м.кв., котельная 4.6 м.кв., крыльцо 9.7 м.кв., терасса 9.7 м.кв.

Итого общая площадь первого этажа деревянного дома из бруса, составляет 144.9 м2. .

На втором этаже дома согласно проекта расположены: спальная комната 20.8 м.кв., спальная комната 11.5 м.кв., спальная комната 11.5 м.кв., са. узел 7.7 м.кв., гардеробная 7.7 м.кв., холл 15.7 м.кв., балкон 9.7 м.кв.,

Итого общая площадь второго этажа деревянного дома из бруса, составляет 84.6 м2.

Общий метраж 230 м2 по полу двух этажей.

Чертежи дома с внутренними планами и чертежами фасадов дома, предназначены для строительства дома из клееного или профилированного бруса. Данный проект дома один из самых популярных и красивый по внешнему виду и удобной планировкой внутри. Дом предназначен для постоянного проживания семьи из 8 - 9 человек.

Деревянный дом из клееного бруса 150 мм х 200 мм по данному проекту построим для Вас за 4 400 000 рублей под ключ. Загородный дом из профилированного бруса 150 мм х 150 мм по данному проекту построим для Вас за 2 400 000 рублей без отделки.

Дом из рубленного (тесанного, окоренного) бревна по этому проекту построим за 5 месяцев под ключ по цене 2 000 000 рублей с внутренней отделкой без инженерных систем. Отделка внутри дома будет сделана деревянной вагонкой (потолок, перегородки).

Построим по данному проекту каркасный дом 230 м2, стоимостью 3 200 000 рублей с полной отделкой под ключ. Фундамент будет построен на винтовых сваях.

Стоимость строительства деревянного дома под ключ по данному проекту, зависит от необходимых инженерных сетей и используемых материалов для отделки дома (септик, отопление каким котлом, строительство фундамента, наружная и внутренняя отделка).

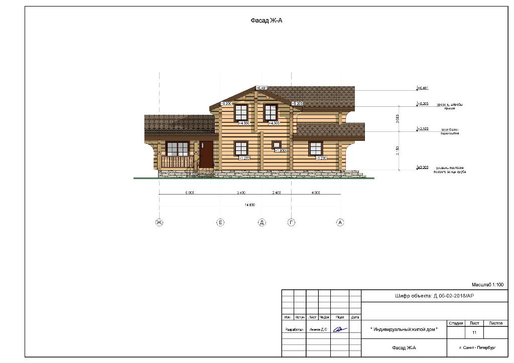
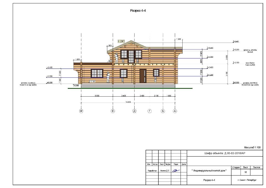
Проект деревянного дома из клееного бруса 230 м2


полный проект дома с чертежами 230 м. кв. полный проект дома с чертежами 230 м. кв. полный проект дома с чертежами 230 м. кв. полный проект дома с чертежами 230 м. кв. полный проект дома с чертежами 230 м. кв. полный проект дома с чертежами 230 м. кв. полный проект дома с чертежами 230 м. кв. полный проект дома с чертежами 230 м. кв. полный проект дома с чертежами 230 м. кв. полный проект дома с чертежами 230 м. кв. полный проект дома с чертежами 230 м. кв. полный проект дома с чертежами 230 м. кв. полный проект дома с чертежами 230 м. кв. полный проект дома с чертежами 230 м. кв. полный проект дома с чертежами 230 м. кв. полный проект дома с чертежами 230 м. кв. полный проект дома с чертежами 230 м. кв. полный проект дома с чертежами 230 м. кв. полный проект дома с чертежами 230 м. кв. полный проект дома с чертежами 230 м. кв. полный проект дома с чертежами 230 м. кв. полный проект дома с чертежами 230 м. кв. полный проект дома с чертежами 230 м. кв. полный проект дома с чертежами 230 м. кв. полный проект дома с чертежами 230 м. кв. полный проект дома с чертежами 230 м. кв. полный проект дома с чертежами 230 м. кв. полный проект дома с чертежами 230 м. кв. полный проект дома с чертежами 230 м. кв. полный проект дома с чертежами 230 м. кв. полный проект дома с чертежами 230 м. кв. полный проект дома с чертежами 230 м. кв. полный проект дома с чертежами 230 м. кв. полный проект дома с чертежами 230 м. кв. полный проект дома с чертежами 230 м. кв. полный проект дома с чертежами 230 м. кв.
Общая площадь 230 м2
Жилая площадь 190.2 м2

Построим по данному проекту каркасный дом или из газобетона/пенобетона/газосиликатных блоков, из кирпича, из рубленного/оцилиндрованного бревна, из клееного/профилированного бруса, из монолитного бетона.

Стоимость строительства дома за один квадратный метр общей площади.

  • Дома из пенобетона (газобетона или пеноблоков) от 19 000 рублей кв.м (без отделки)
  •  
  • Дома из кирпича с утеплителем (50 мм) от 32 000 рублей кв.м.
  •  
  • Дома из профилированного бруса от 16 000 рублей кв.м
  •  
  • Дома из оцилиндрованного бревна от 20 000 рублей кв.м
  •  
  • Дома из клееного бруса от 28 000 рублей кв.м.
  •  
  • Строительство каркасного дома от 15 000 рублей кв.м
  •  
  • Строительство дома из СИП панелей от 17 000 рублей кв.м.
  •  

    Запрещается копирование и распространение материалов
    сайта без ведома владельцев © 2003-2023 EconomStroi.ru
    О компании Виды работ Прейскурант Наши работы Инвестиции Руководства
    Яндекс.Метрика