КАРКАСНЫЙ ДОМ
     Каркасный дом
     Проекты каркасных домов
     Комплект каркасного дома
     Цена каркасного дома
     Каркасные дома фото
     Смета на строительство

  Заказать ремонт, строительство коттеджа или ландшафтные работы в режиме онлайн


Заказать ремонт, строительство коттеджа или ландшафтные работы в режиме онлайн

ПОСТРОЕННЫЕ ДОМА.


Каркасный дом под ключ.

Каркасный дом под ключ


Дачный дом с отделкой.

Дачный дом с отделкой


Каркасный дом с отделкой.

Каркасный дом с отделкой


Каркасный дом 260 м2.

Каркасный дом


Реконструкция дачного дома.

Реконструкция дачного дома


Строительство дачи.

Строительство дачи


Заказать ремонт, строительство коттеджа или ландшафтные работы в режиме онлайн

 

Проект коттеджа

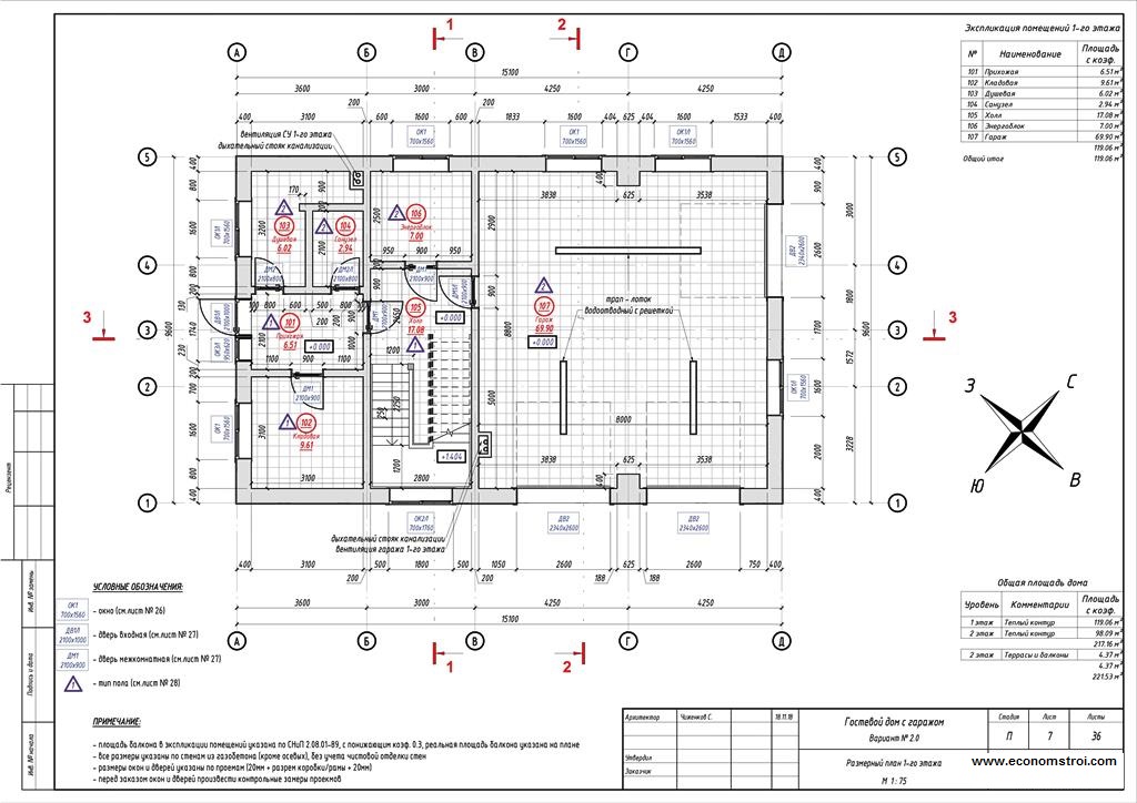
Двухэтажный дом с гаражом из гаобетона и бревна.

В данном проекте есть чертежи фундамента плита (схема укладки арматуры), проект кровли дома, поэтажные планы дома и гаража, расстановка мебели и оборудования, размеры фасада дома по осям, спецификация элементов заполнения оконных и дверных проемов, план размещения дома на участке.

Данный проект предназначен для строительства дома из газобетона (газобетонных блоков или пенобетона) и лафета (деревянных бревен). Но по этому проекту дома мы построим Вам дом из любых строительных материалов: из клееного или профилированного бруса, из кирпича или из монолитного бетона, так же можно построить каркасный дом или деревянный из бревна (рубленного, оцилиндрованного, окоренного).

Если Вам понравилась планировка и внешний вид дома, то скачивайте проект бесплатно и стройте своими руками. Безусловно строительство дома лучше заказать в строительной фирме специализирующейся на загородном строительстве. Наша фирма "Эконом Строй" одна из строительных фирм Санкт-Петербурга, которая строит загородные дома под ключ с полной отделкой и инженерными сетями.

Мы построим по этому проекту Вам загородный дом 320 м. кв. под ключ, стоимостью: каркасный 3 800 000 рублей, из газобетона 5 900 000, из кирпича 10 600 000, из клееного бруса (сечением 200х200 мм) 8 800 000 рублей с полной отделкой под ключ. С внутренними отделочными работами и с разводкой и подключением инженерных сетей.

Стоимость строительства загородного дома зависит от необходимых инженерных сетей и используемых материалов для отделки дома. Так же на стоимость строительства дома влияет какой септик установить, отопление каким котлом сделать, какой фундамент под дом построить, наружная и внутренняя отделка.

Полный проект для строительства дома 320 м2 из газобетона и лафета.


проект  дома 320 м.кв. проект  дома 320 м.кв. проект  дома 320 м.кв. проект  дома 320 м.кв. проект  дома 320 м.кв. проект  дома 320 м.кв. проект  дома 320 м.кв. проект  дома 320 м.кв. проект  дома 320 м.кв. проект  дома 320 м.кв. проект  дома 320 м.кв. проект  дома 320 м.кв.
Общая площадь 319.9 м2
Жилая площадь 296.2 м2

Вы так же можете изучить и бесплатно скачать проект фундамента, чертежи кровли дома (стропильная система, экспликация полов, планы фасада этого дома с нашего сайта.

У нас Вы можете заказать строительство загородного дома по данному проекту: каркасный дом или из газобетона/пенобетона/газосиликатных блоков, из кирпича, из рубленного/оцилиндрованного бревна, из клееного/профилированного бруса, из монолитного бетона.

Стоимость строительства дома за один квадратный метр общей площади.

  • Дома из пенобетона (газобетона или пеноблоков) от 19 000 рублей кв.м
  •  
  • Дома из кирпича с утеплителем (50 мм) от 32 000 рублей кв.м.
  •  
  • Дома из профилированного бруса от 16 000 рублей кв.м
  •  
  • Дома из оцилиндрованного бревна от 20 000 рублей кв.м
  •  
  • Дома из клееного бруса от 28 000 рублей кв.м.
  •  
  • Строительство каркасного дома от 15 000 рублей кв.м
  •  
  • Строительство дома из СИП панелей от 17 000 рублей кв.м.
  • Самый популярный проект дома, по которому можно построить дом 120 - 130 метров. В планировке дома все довольно органично и в то же время просто. В доме 5 спальных комнат, одна на первом этаже. Дом подойдет для большой семьи из 8 - 12 человек, это вместе с бабушками, детьми и внуками. Например старикам на первом этаже выделить спальную, здесь и ванная комната и кухня рядом. На втором этаже родители разместятся с двумя тремя детьми и для гостей комната останется. Да и на втором этаже в данном проекте дома предусмотрена большая ванная комната. Берите скачивайте проект бесплатно и не забудьте у нас заказать строительство дома по этому проекту.

    Технология, чертежи и схема сборки, построенные каркасные дома фото. Просчитанная смета на строительство и отделку каркасного дома примерно 100 кВ. м. Фото этапов строительства, сборки каркасника.
               8м х 7м         100 м. кв.                9м х 9м        150 м. кв.
               - каркасный дом  1 600 т.р.               - каркасный дом  2 300 т.р.
               - дом из бруса  1 800 т.р.               - дом из бруса  2 600 т.р.
               - рубленный дом  2 100 т.р.               - рубленный дом  3 000 т.р.
               - оцилиндрованное  2 300 т.р.               - оцилиндрованное  3 100 т.р.
               - клееный брус  2 600 т.р.               - клееный брус  3 900 т.р.
               - из пенобетона  2 900 т.р.               - из пенобетона  4 200 т.р.
    • Цены на строительства домов указаны в комплектации "ЭКОНОМ".
      Цена на дом в комплектации:
    • "Стандарт" + 10 % , "Зимний" + 14 % , "Люкс" + 18 % .
    • Во всех комплектациях каркасные дома строятся под ключ !!!

      Он-лайн заказ на строительство загородного дома или коттеджа  СКИДКА 5 %

    Имя
    email
    Сообщение
       

     

    Запрещается копирование и распространение материалов
    сайта без ведома владельцев © 2003-2018 EconomStroi.ru
    О компании Виды работ Прейскурант Наши работы Инвестиции Руководства
    Яндекс.Метрика